- Accueil
- Vente
- Alpes maritimes
- Nice
- Deux pièces - Nice Dubouchage
Référence : Cons-37
Calculette
Partager
Deux pièces - Nice Dubouchage
Description de l'offre
Situé au 7ème étage d'une prestigieuse résidence sur le magnifique boulevard Dubouchage, cet appartement bénéficie d’un emplacement d’exception au cœur de Nice : à deux pas de l’avenue Jean Médecin, de Nice Étoile, de la Place Masséna et à proximité immédiate de la Promenade des Anglais.
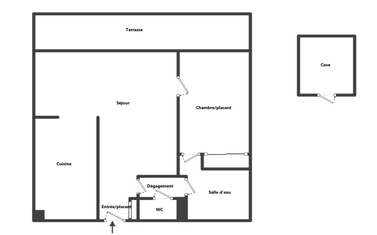
Composé d'une entrée avec placard, d'un séjour avec une grande terrasse de 17 m², d'une chambre avec placard, d'une cuisine, d'une salle de douche ainsi que d'un WC.
Equipé de double-vitrage ainsi que d'un sysètme de climatisation réversible.
Avant-dernier étage (7ème sur 8) avec ascenseur et cave.
Une adresse rare et recherchée pour un cadre de vie raffiné.
Les informations sur les risques auxquels ce bien est exposé sont disponibles sur le site Géorisques
Descriptif du bien
- Code postal : 06000
- Surface habitable (m²) : 49 m²
- Surface loi Carrez (m²) : 48,74 m²
- Nombre de chambre(s) : 1
- Nombre de pièces : 2
- Etage : 7
- Ascenseur : OUI
- Nb de salle d'eau : 1
- Cuisine : SEPAREE
- Mode de chauffage : Electrique
- Type de chauffage : Air pulsé
- Format de chauffage : Individuel
- Interphone : OUI
- Terrasse : OUI
- Cave : OUI
- Surface cave (m²) : 2.70
- Exposition : NORD
- Année de construction : 1976
- Quartier : Centre
- Copropriété : OUI
- Lot n° : 233
- nombre de lots : 244
- Quote Part annuelle des charges : 1 396 €
- plan de sauvegarde : NON
- statut du syndic : pas de procédure en cours
- Prix de vente honoraires TTC inclus : 550 000 €
- Prix de vente honoraires TTC exclus : 523 809,50 €
- Honoraires TTC à la charge acquéreur : 5 %
- Charges : 116 €
- Taxe foncière annuelle : 1 479 €
Montant estimé des dépenses annuelles d'énergie pour un usage standard est compris entre 960 € et 1 370 € . Prix moyens des énergies indexés sur les années 2021, 2022 et 2023 (abonnements compris).
La ville de Nice (06000)
Ce bien vous intéresse ?
Partager l'offre
Arnaud LIPRANDI
Nice (06000)
Les informations recueillies sur ce formulaire sont enregistrées dans un fichier informatisé par La Boite Immo agissant comme Sous-traitant du traitement pour la gestion de la clientèle/prospects de l'Agence / du Réseau qui reste Responsable du Traitement de vos Données personnelles.
La base légale du traitement repose sur l'intérêt légitime de l'Agence / du Réseau.
Elles sont conservées jusqu'à demande de suppression et sont destinées à l'Agence / au Réseau.
Conformément à la loi « informatique et libertés », vous disposez des droits d’accès, de rectification, d’effacement, d’opposition, de limitation et de portabilité de vos données. Vous pouvez retirer votre consentement à tout moment en contactant directement l’Agence / Le Réseau.
Consultez le site https://cnil.fr/fr pour plus d’informations sur vos droits.
Si vous estimez, après avoir contacté l'Agence / le Réseau, que vos droits « Informatique et Libertés » ne sont pas respectés, vous pouvez adresser une réclamation à la CNIL.
Nous vous informons de l’existence de la liste d'opposition au démarchage téléphonique « Bloctel », sur laquelle vous pouvez vous inscrire ici : https://www.bloctel.gouv.fr
Dans le cadre de la protection des Données personnelles, nous vous invitons à ne pas inscrire de Données sensibles dans le champ de saisie libre.
Ce site est protégé par reCAPTCHA, les Politiques de Confidentialité et les Conditions d'Utilisation de Google s'appliquent.
